Győr - Eladó Ház
Győrszentiván
145 m2
75.900.000 Ft
659
Kiváló ár-érték!
Leírás
Nagycsaládosok, összeköltözők, befektetők figyelem!
Két különálló lakrész Győrszentivánon családi házas övezetében!
A Klasszik Ingatlaniroda eladásra kínálja Győrszentiván kedvelt, csendes részén ezt a két külön bejáratú lakrészből álló ikerházat.
Telek mérete: 1 134 m²
Az ingatlan lehetőséget ad két generáció zavartalan együttélésére, valamint kiváló befektetési lehetőség, bérbeadásra is tökéletesen alkalmas.
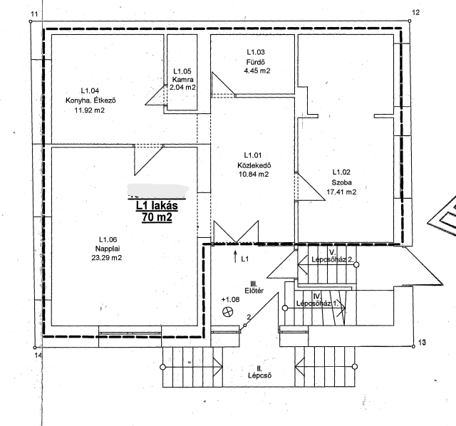
Földszinti lakrész – 70 m²
Nappali, konyha-étkező, kamra, hálószoba, fürdőszoba, WC, tágas előtér található benne. A szobák parkettásak, a többi helyiség kerámialappal burkolt. Korszerűsített, egy tisztasági festés után azonnal költözhető.
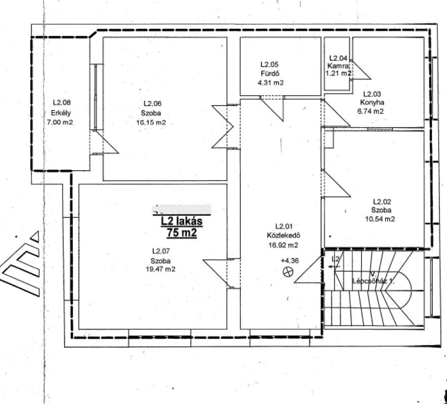
Emeleti lakrész – 75 m²
Három szoba, konyha, kamra, étkező, fürdőszoba és WC kapott benne helyet. A lakás külön lépcsőházon keresztül közelíthető meg, teljesen szeparált az alsó szinttől.
Tisztasági festést követően költözhető, igény esetén a mai kor igényei szerint modernizálható.
Műszaki adatok:
1971-ben épült ikerház: tégla falazat, vasbeton födém, hőszigetelt lapostető, műanyag nyílászárók, ablakok redőnyösek, gázkazános fűtés, villanybojleres melegvíz ellátás, ipari áram, újszerű klímaberendezések mindkét szinten, külön víz- és villanyórák.
A közös udvar rendezett, gondozott. Kiválóan alkalmas kikapcsolódásra, kertészkedésre, családi-baráti összejövetelek tartására. Öntözés fúrt kútról megoldott.
Tárolásra a pince és az udvari tároló is rendelkezésre áll.
Irányár: 75,9 M Ft
Kiválóan alkalmas nagycsaládosok, összeköltözők számára.
Befektetőknek is kiváló lehetőség, az ingatlan mindét szintjét jelenleg is bérlők lakják.
Azoknak is ajánljuk akik vállalkozásukat ottonról szeretnék működtetni, akár műhely, telephely, szépségszalon, iroda, cukrászda…stb is kialakítható.
Az ingatlan megvásárlásához irodánk díjmentesen többféle pénzügyi lehetőséget kínál. Igény esetén – megfelelő ügyvédi háttérrel – vállaljuk az adásvétel teljes körű lebonyolítását, valamint az energetikai tanúsítvány gyors elkészítését.
Keressen bizalommal – akár hétvégén is!
Tel: +36 20 538 11936
Email: info@klasszikingatlan.hu
Kapcsolati adatok
Érdeklődjön az ingatlanról, e-mailben!
Hasonló ingatlanok
Győr (Győrszentiván)
Hangulatos, tágas terek, gondozott kert, 100 m2-es melléképület ...
Győr (Győrszentiván)
Felújítással jelentős értéknövekedést kínáló családi ház kiváló ...
Győr (Kisbácsa)
Családi paradicsom: Nappali+3 szoba, privát wellnes, medence, sz...